Ellsworth, KS, Burrton Subdivision, MP 607.9

Discussion in 'Depots A-F' started by chris, May 8, 2004.

  1. chris

    chris Guest

    Ellsworth, KS depot drawing.

    Published in the Frisco Museum's All Aboard magazine.

    Posted with permission.

    Ellsworth, KS track schematic.

    Edit 3/20/2024: This was the end of the Burrton Subdivision from Wichita, KS.

    Note the interchange with the Union Pacific (UP) Railroad.

    This was their former Kansas Pacific (KP) line from Kansas City, KS to Denver, CO.
    MKD
     

    Attached Files:

    Last edited by a moderator: Mar 20, 2024
  2. RICHCRAB

    RICHCRAB Guest

    Hello

    Here is a photograph that I came across for Ellsworth, KS.

    Take care,

    Rich

    Ship it on the Frisco!
     

    Attached Files:

    Last edited by a moderator: Mar 20, 2024
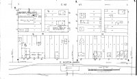
  3. railroadguy65

    railroadguy65 Member

    Ellsworth, KS depot. :)

    1928 Sanborn map

    Edit 3/20/2024: The Sanborn map shows the Union Pacific (UP) Railroad depot.

    This is on their former Kansas Pacific (KP) route between Kansas City, kS and Denver, CO.
    MKD
     

    Attached Files:

    Last edited by a moderator: Mar 20, 2024
  4. KMRwyCo

    KMRwyCo Member Frisco.org Supporter

    Hate to put a kink in your Sanborn map posting, but the map you have posted here is of the Union Pacific in Ellsworth, KS.

    The Frisco crossed this line a half mile west of the Union Pacific depot shown.
     
    Last edited by a moderator: Mar 20, 2024
  5. railroadguy65

    railroadguy65 Member

    You are correct sir. :)

    I just relooked at the map.

    I should have looked better at the old postcard I have, which I have added to the post.

    Take care,

    RRG65
     

    Attached Files:

    Last edited by a moderator: Mar 20, 2024
    mountaincreekar likes this.
  6. rjthomas909

    rjthomas909 Member Frisco.org Supporter

  7. rjthomas909

    rjthomas909 Member Frisco.org Supporter

    Yet another photograph of the Frisco depot from the Kansas Historical Society:

    00674691.jpg

    https://www.kansasmemory.org/item/97357/page/1

    Edit 3/1/2024: Ellsworth, KS, MP 607.9, Burrton Subdivision.

    Note the elevated horizontal fuel storage tank at a bulk oil dealer beyond the boxcar on the left. On the depot note the station name sign on the roof end and the train arrival sign between the lest front window and waiting room door.

    To the right of the depot is a coal storage shed. Extending to the right edge of the image is the Union Pacific (UP), former Kansas Pacific (KP), main line between Topeka, KS and Denver, CO.

    The Frisco crossed the this line at grade just south of the depot at MP 607.8. The crossing was protected by a cabin interlocking, normal position was against the SL-SF.

    View looking south southeast.

    Photograph by Howard Killman.

    Photograph dated 4/27/1957.

    Added photograph narrative detail.
    MKD
     
    Last edited by a moderator: Mar 20, 2024
    mike_newton and klrwhizkid like this.

Share This Page